Products
News
更新時間:2017-11-07

|
公稱通徑mm
|
DN15-DN300
|
||||||
|
材料代號
|
C
|
P
|
R
|
||||
|
主要
零件 |
閥體
|
WCB
|
ZG1Cr18
Ni9Ti |
ZG1Cr18Ni
12Mo2Ti |
|||
|
球體
|
2Cr13
|
1Cr18Ni9Ti
|
1Cr18Ni12MoTi
|
||||
|
閥桿
|
2Cr13
|
1Cr18Ni9Ti
|
1Cr18Ni12MoTi
|
||||
|
密封圈
|
增強聚四氟乙烯 對位聚苯 金屬密封
|
||||||
|
填料
|
聚四氟乙烯 柔性石墨
|
||||||
|
適用
工況 |
適用
介質 |
蒸汽、
水、油品 |
硝酸類
|
醋酸類
|
|||
|
適用
溫度 |
-28℃ - 300℃
|
||||||
|
執行器
|
型號
|
DA/SR系列、GTD/GTE系列、QGSY系列等
|
|||||
|
氣源
壓力 |
0.4-1.2MPa
|
||||||

|
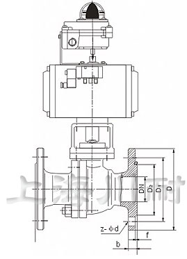
公稱通徑
DN(mm) |
尺 寸(mm)
|
||||||||||||||
|
1.6MPa
|
2.5MPa
|
4.0MPa
|
|||||||||||||
|
L
|
D
|
D1
|
b
|
Z-фD
|
L
|
D
|
D1
|
b
|
Z-фD
|
L
|
D
|
D1
|
b
|
Z-фD
|
|
|
15
|
130
|
95
|
65
|
14
|
4-14
|
130
|
95
|
65
|
16
|
4-14
|
130
|
130
|
65
|
16
|
4-14
|
|
20
|
130
|
105
|
75
|
14
|
4-14
|
130
|
105
|
75
|
16
|
4-14
|
150
|
150
|
75
|
16
|
4-14
|
|
25
|
140
|
115
|
85
|
14
|
4-14
|
140
|
115
|
85
|
16
|
4-14
|
160
|
160
|
85
|
16
|
4-14
|
|
32
|
165
|
135
|
100
|
16
|
4-18
|
165
|
135
|
100
|
18
|
4-18
|
180
|
180
|
100
|
18
|
4-18
|
|
40
|
165
|
145
|
110
|
16
|
4-18
|
165
|
145
|
110
|
18
|
4-18
|
200
|
200
|
110
|
18
|
4-18
|
|
50
|
203
|
160
|
125
|
16
|
4-18
|
203
|
160
|
125
|
20
|
4-18
|
230
|
230
|
125
|
20
|
4-18
|
|
65
|
222
|
180
|
145
|
18
|
4-18
|
222
|
180
|
145
|
22
|
8-18
|
290
|
290
|
145
|
22
|
8-18
|
|
80
|
241
|
195
|
160
|
20
|
8-18
|
241
|
195
|
160
|
22
|
8-18
|
310
|
310
|
160
|
22
|
8-18
|
|
100
|
305
|
215
|
180
|
20
|
8-18
|
305
|
230
|
190
|
24
|
8-23
|
350
|
350
|
190
|
24
|
8-23
|
|
125
|
356
|
245
|
210
|
22
|
8-18
|
356
|
270
|
220
|
28
|
8-25
|
400
|
270
|
220
|
28
|
8-25
|
|
150
|
394
|
280
|
240
|
24
|
8-23
|
394
|
300
|
250
|
30
|
8-25
|
480
|
300
|
250
|
30
|
8-25
|
|
200
|
457
|
335
|
295
|
28
|
12-23
|
457
|
360
|
310
|
34
|
12-25
|
600
|
375
|
320
|
38
|
12-30
|
